ユニ・アルス真田山南

【外観】の画像

【外観】 【駅近、最寄駅歩3分!2WAYアクセスOK♪平成10年築☆】ローン返済目安:月々約98548円(頭金0円、変動金利0.875%、返済期間40年、ボーナス払い無しで試算しています)

【間取り】の画像

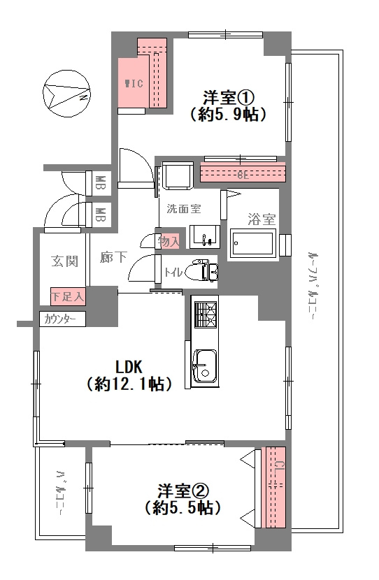
【間取り】 【最上階!角住戸!ペット飼育OK♪室内水廻り設備一新!全面リフォーム済み☆安心の新調設備保証付き☆食洗機・浴室乾燥機完備☆レースカーテン付き☆WICあります♪】

【エントランス】の画像

【エントランス】 オートロック完備マンション☆「真田山公園」徒歩2分圏内です♪

【その他共用部分】の画像

【その他共用部分】 宅配ボックス完備です☆

【その他共用部分】の画像

【その他共用部分】 【エレベーター】

【玄関】の画像

【玄関】 -

【玄関】の画像

【玄関】 シューズボックス付きです♪

【内装】の画像

【内装】 【廊下】

【居間・リビング】の画像

【居間・リビング】 【LDK:約12.1帖】クロス貼替え、水廻り設備一新、ハウスクリーニング済みです☆

【居間・リビング】の画像

【居間・リビング】 【LDK:約12.1帖】

【居間・リビング】の画像

【居間・リビング】 【LDK:約12.1帖】※設置されている家具・小物・照明はディスプレイ用です。家具付きの販売ではございません。ご了承下さい。

【居間・リビング】の画像

【居間・リビング】 【LDK:約12.1帖】

【居間・リビング】の画像

【居間・リビング】 【LDK:約12.1帖】レースカーテン付きです☆

【居間・リビング】の画像

【居間・リビング】 【LDK:約12.1帖】

【バルコニー】の画像

【バルコニー】 北向きのルーフバルコニーです☆

【キッチン】の画像

【キッチン】 対面式のキッチンです♪

【キッチン】の画像

【キッチン】 食洗機付きのシステムキッチン新調です☆3口ガスコンロ☆

【内装】の画像

【内装】 汚れ落ちUP!ファインバブル搭載の洗濯水栓新調です☆

【独立洗面台】の画像

【独立洗面台】 洗面台新調です☆

【浴室】の画像

【浴室】 ユニットバス・給湯器新調☆浴室乾燥機・高温差し湯機能完備☆窓付きです☆

【トイレ】の画像

【トイレ】 シャワートイレ新調です☆

【寝室】の画像

【寝室】 【洋室5.9帖】2面に開口部あり☆北側ルーフバルコニーに面しています☆

【寝室】の画像

【寝室】 【洋室5.9帖】2ヶ所に収納、クローゼットとウォークインクローク完備です♪

【寝室】の画像

【寝室】 【洋室5.9帖】

【収納】の画像

【収納】 【洋室5.9帖】のウォークインクローク内です♪

【子供部屋】の画像

【子供部屋】 【洋室5.5帖】リビングと続き間になったお部屋です♪南側のバルコニーに面しています☆

【子供部屋】の画像

【子供部屋】 【洋室5.5帖】2面採光☆クローゼット完備です♪

【バルコニー】の画像

【バルコニー】 南向きのバルコニーです☆

【駐輪場】の画像

【駐輪場】 屋根付きの駐輪場です♪

【外観】の画像 外観
【間取り】の画像 間取り
【エントランス】の画像 エントランス
【その他共用部分】の画像 その他共用部分
【その他共用部分】の画像 その他共用部分
【玄関】の画像 玄関
【玄関】の画像 玄関
【内装】の画像 内装
【居間・リビング】の画像 居間・リビング
【居間・リビング】の画像 居間・リビング
【居間・リビング】の画像 居間・リビング
【居間・リビング】の画像 居間・リビング
【居間・リビング】の画像 居間・リビング
【居間・リビング】の画像 居間・リビング
【バルコニー】の画像 バルコニー
【キッチン】の画像 キッチン
【キッチン】の画像 キッチン
【内装】の画像 内装
【独立洗面台】の画像 独立洗面台
【浴室】の画像 浴室
【トイレ】の画像 トイレ
【寝室】の画像 寝室
【寝室】の画像 寝室
【寝室】の画像 寝室
【収納】の画像 収納
【子供部屋】の画像 子供部屋
【子供部屋】の画像 子供部屋
【バルコニー】の画像 バルコニー
【駐輪場】の画像 駐輪場

中古マンション

1月12日 値下げ

価格
3,990万円 支払いシミュレーション
所在地
大阪府大阪市天王寺区味原町 MAP
交通
地下鉄千日前線「鶴橋」駅徒歩3分
専有面積
壁芯 : 57.56㎡
間取り
2LDK
向き
所在階 / 階建て
8階  / 8階建て
築年月(築年数)
1998年 2月 (築27年)

まずはご相談ください!

06-6760-0344

営業時間
9:30~19:00
定休日
(火)水曜日/夏季休暇/年末年始休暇

担当者スタッフより

営業星川

おすすめポイント

駅近、最寄駅歩3分!2WAYアクセスもOK!最上階!角住戸!ペット飼育OK♪室内水廻り設備一新!全面リフォーム済み☆安心の新調設備保証付き☆食洗機・浴室乾燥機完備☆レースカーテン付き☆WICあり♪「真田山公園」徒歩2分圏内です♪

営業星川 (部署名:営業部)

駅近、最寄駅歩3分!2WAYアクセスもOK!最上階!角住戸!ペット飼育OK♪室内水廻り設備一新!全面リフォーム済み☆安心の新調設備保証付き☆食洗機・浴室乾燥機完備☆レースカーテン付き☆WICあり♪「真田山公園」徒歩2分圏内です♪

まずはご相談ください!

営業時間
9:30~19:00
定休日
(火)水曜日/夏季休暇/年末年始休暇

360°パノラマ画像

画像をクリックして視点を操作


  • リビング

  • 洋室

  • 洋室

  • 洗面所

  • 風呂

物件概要

物件番号:78102949 /  情報更新日:2026年01月12日 /  更新予定日:2026年01月26日 /  取引条件の有効期限:2026年01月26日 情報の見方
価格 3,990万円

1月12日 値下げ

支払いシミュレーション
管理費 13,200円
修繕積立金 21,885円 修繕積立基金 -
所在地 大阪府大阪市天王寺区味原町 MAP 交通 地下鉄千日前線「鶴橋」駅徒歩3分
大阪環状線「鶴橋」駅徒歩4分
専有面積 壁芯 : 57.56㎡ 間取り(詳細) 2LDK (LDK 12.1帖/洋室 5.9帖/洋室 5.5帖)
向き 所在階 / 階建て 8階  / 8階建て
築年月(築年数) 1998年 2月 (築27年) 販売戸数 / 棟総戸数 1戸 / 21戸
土地権利 所有権 権利金 -
管理組合有無 管理形態 管理会社に全部委託
管理方式 日勤 管理会社 グローバルコミュニティ株式会社
現況 空家 引渡時期 即時
バルコニー面積 2.53㎡ ルーフバルコニー面積 14.69㎡
テラス面積 - 専用庭面積 -
用途地域 第二種住居 / 商業 取引態様 仲介
駐車場 / 月額料金 無 / - 土地の敷金 / 保証金 -
地勢 - 国土法届出要否 不要
建物構造 鉄筋コンクリート 建築確認番号 -
設備条件
  • ペット相談
  • リフォーム済
  • 室内洗濯機置場
  • バルコニー
  • ルーフバルコニー
  • 都市ガス
  • 公営水道
  • 公共下水
  • エレベーター
  • 両面バルコニー
  • ガスコンロ
  • コンロ2口以上
  • 食器洗い乾燥機
  • システムキッチン
  • 対面式キッチン
  • コンロ3口
  • 浴室乾燥機
  • 温水洗浄便座
  • 洗面台
  • 独立洗面台
  • ウォークインクロゼット
  • オートロック
  • 宅配ボックス
リフォーム 2025年10月
キッチン 浴室 トイレ 壁 全室 給湯器・洗面台新調、ハウスクリーニング等。
備考 ※お伝え事項あり。
※ペット飼育可(条件付)
※※設置されている家具・小物・照明はディスプレイ用です。家具付きの販売ではございません。

【校区】
・味原小学校-徒歩3分(約200m)
・高津中学校-徒歩10分(約800m)

【周辺環境】
・「真田山公園」徒歩2分(約120m)
・「デイリーカナートイズミヤ玉造店」徒歩7分(約500m)
・「スギドラッグ鶴橋駅西店」徒歩4分(約260m)
・「ファミリーマート鶴橋駅前店」徒歩3分(約210m)

【住宅ローン取次ぎお任せ下さい。ご相談無料。】

地図

※地図上に表示される物件の位置は付近住所に所在することを表すものであり、実際の物件所在地とは異なる場合がございます。

まずはご相談ください!

営業時間
9:30~19:00
定休日
(火)水曜日/夏季休暇/年末年始休暇

取り扱い店舗(エースカンパニー不動産株式会社)

エースカンパニー不動産株式会社の画像

所在地
大阪府大阪市平野区背戸口5丁目6-2 平野区役所東隣  ファミリーマート裏 お客様専用パーキングあり
電話番号
06-6760-0344
営業時間
9:30~19:00
定休日
(火)水曜日/夏季休暇/年末年始休暇

支払いシミュレーションこの物件を購入した場合の、月々の支払い価格の一例です。借り入れを保証するものではございません。

返済期間
金利
ボーナス時の増額(1回分)
借入金額
頭金

※元利均等方式金利5.00%まで※返済年数5~50年まで入力できます

※ボーナスは年2回で計算しています。1000万円まで入力できます

毎月の返済額

まずはご相談ください!

営業時間
9:30~19:00
定休日
(火)水曜日/夏季休暇/年末年始休暇

売却査定

お問い合わせ